Quartier Ha'Atsmaut - Bat Yam
Immeuble Neuf
À partir de 2 650 000 ₪
Un immeuble modernisé au cœur d’un quartier en plein renouveau
Ce projet de renouvellement urbain (TAMA 38/2) à Bat Yam prévoit la transformation complète d’un immeuble existant en une résidence moderne, élégante et confortable, répondant aux standards actuels de qualité et de sécurité.
Architecture & conception
Le bâtiment fera l’objet d’une rénovation totale incluant :
Renforcement structurel selon les normes antisismiques
Modernisation des façades
Installation d’un ascenseur moderne
Réaménagement des espaces communs
L’ensemble est conçu pour offrir une amélioration notable du confort quotidien, une esthétique raffinée et une valorisation durable du cadre bâti.
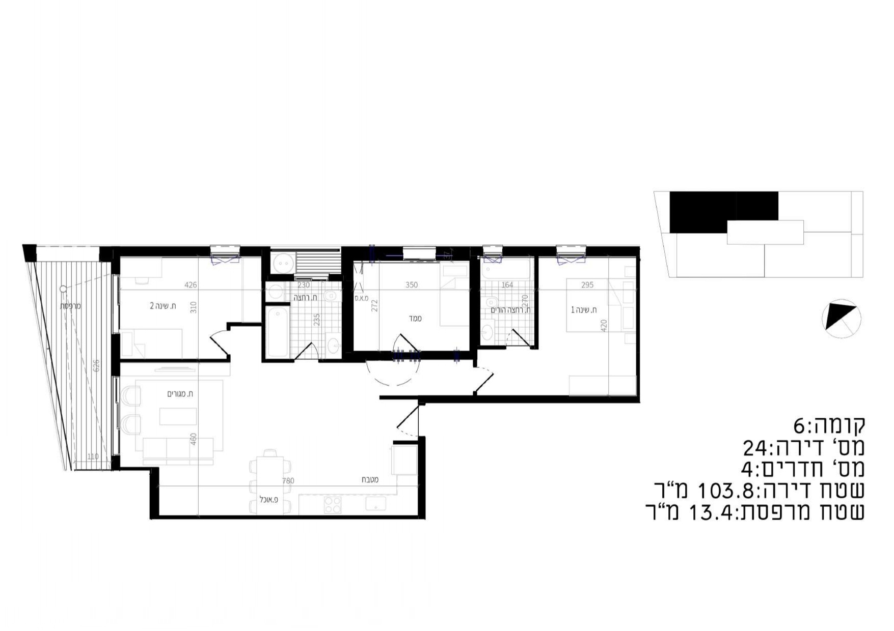
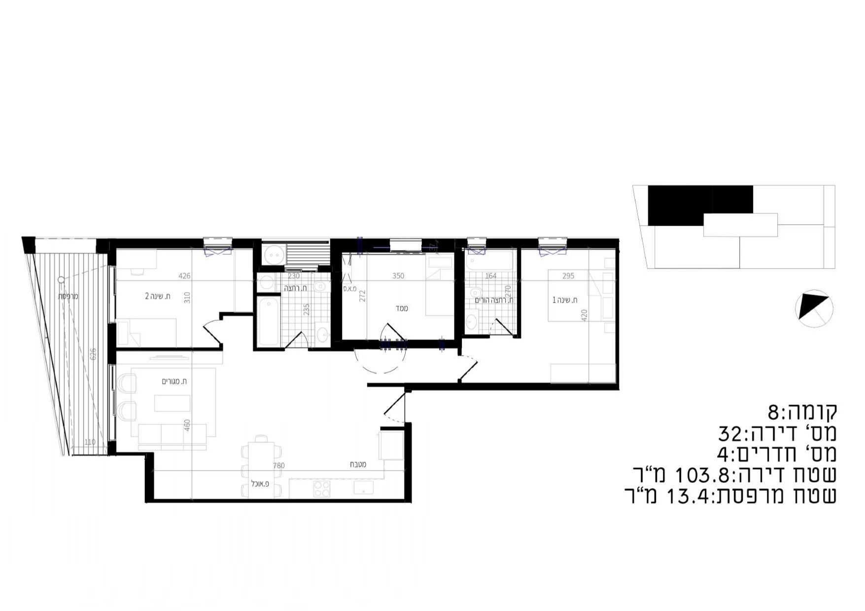
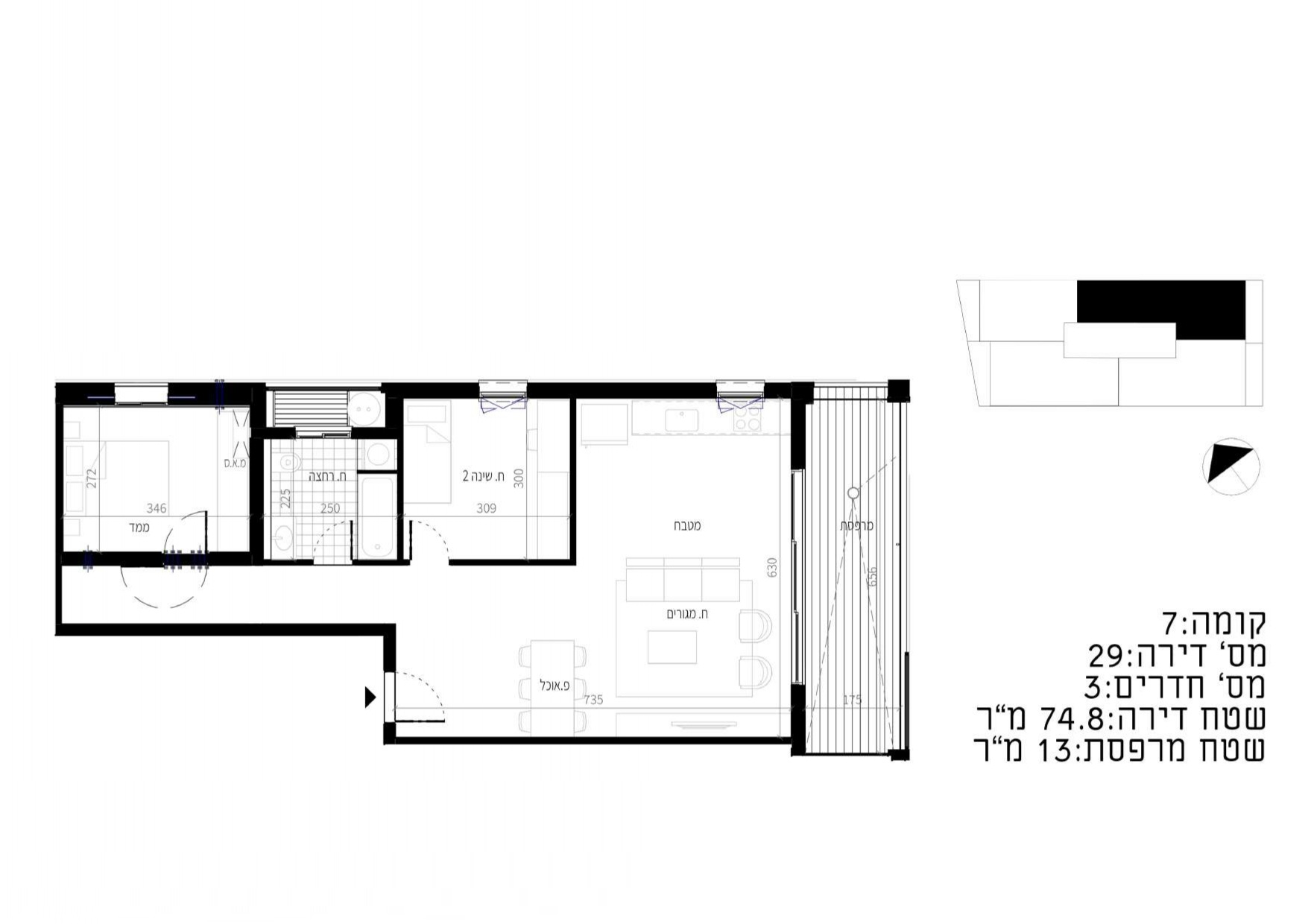
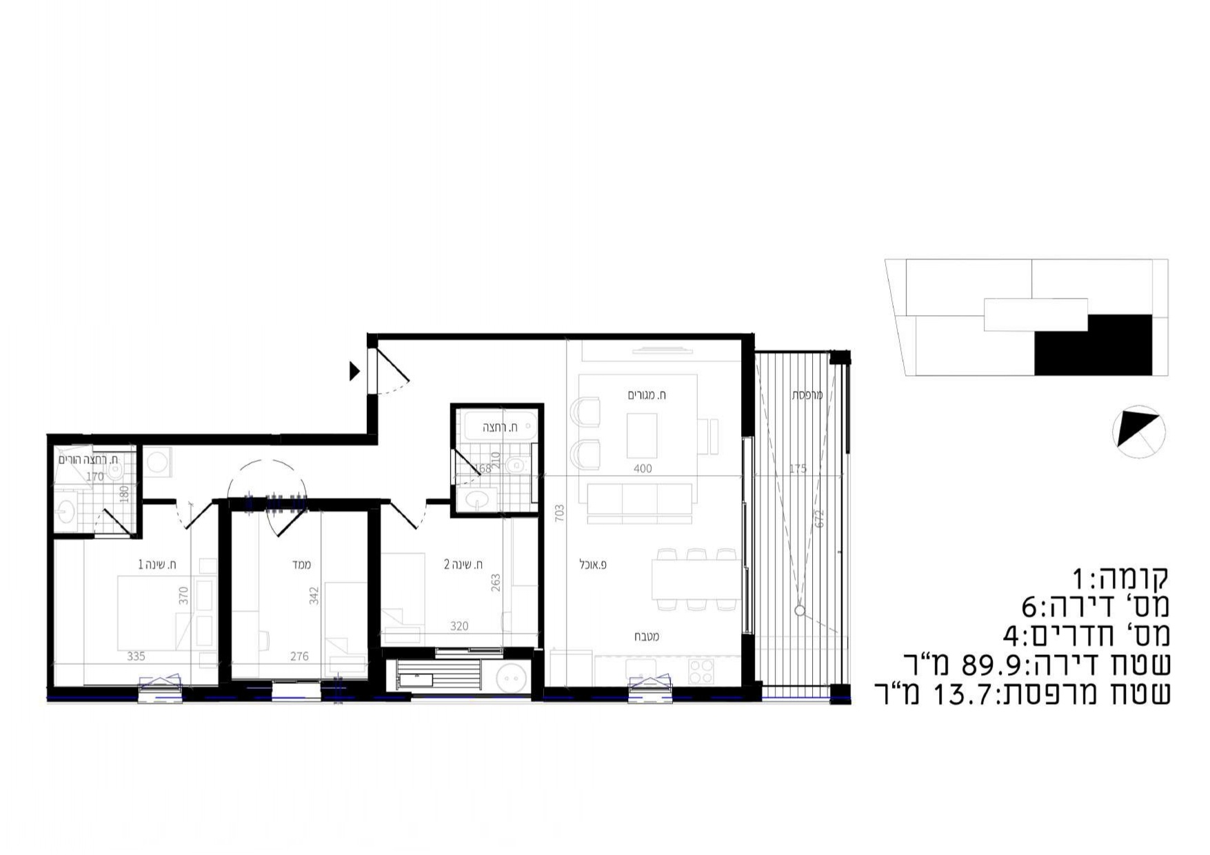
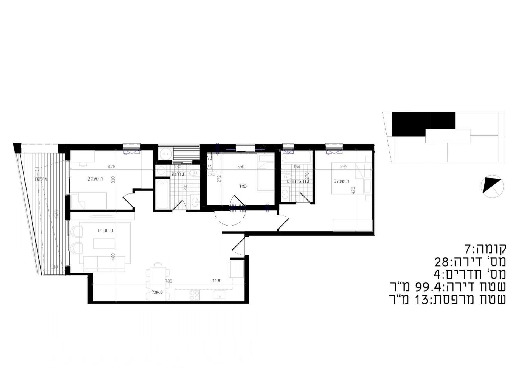
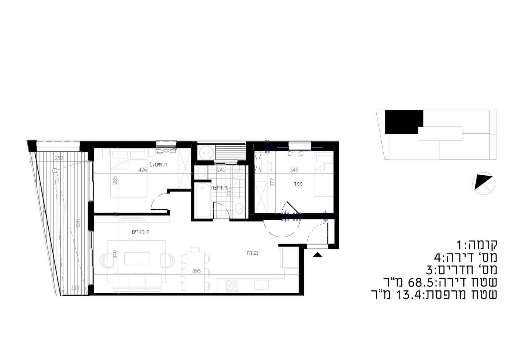
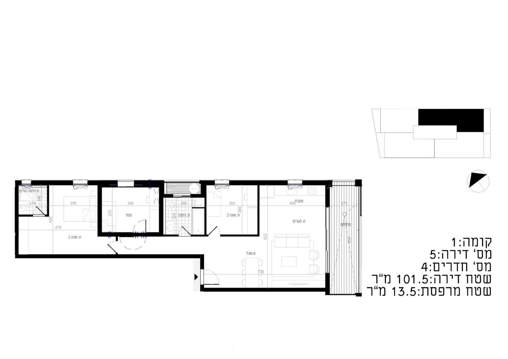
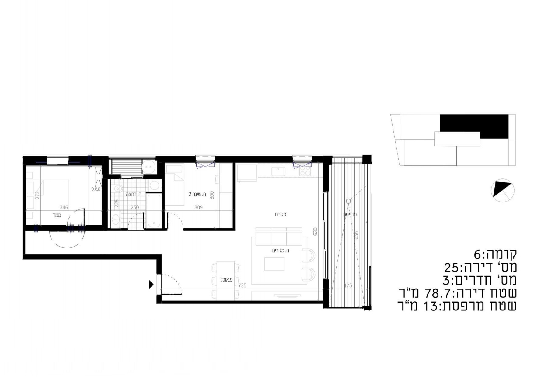
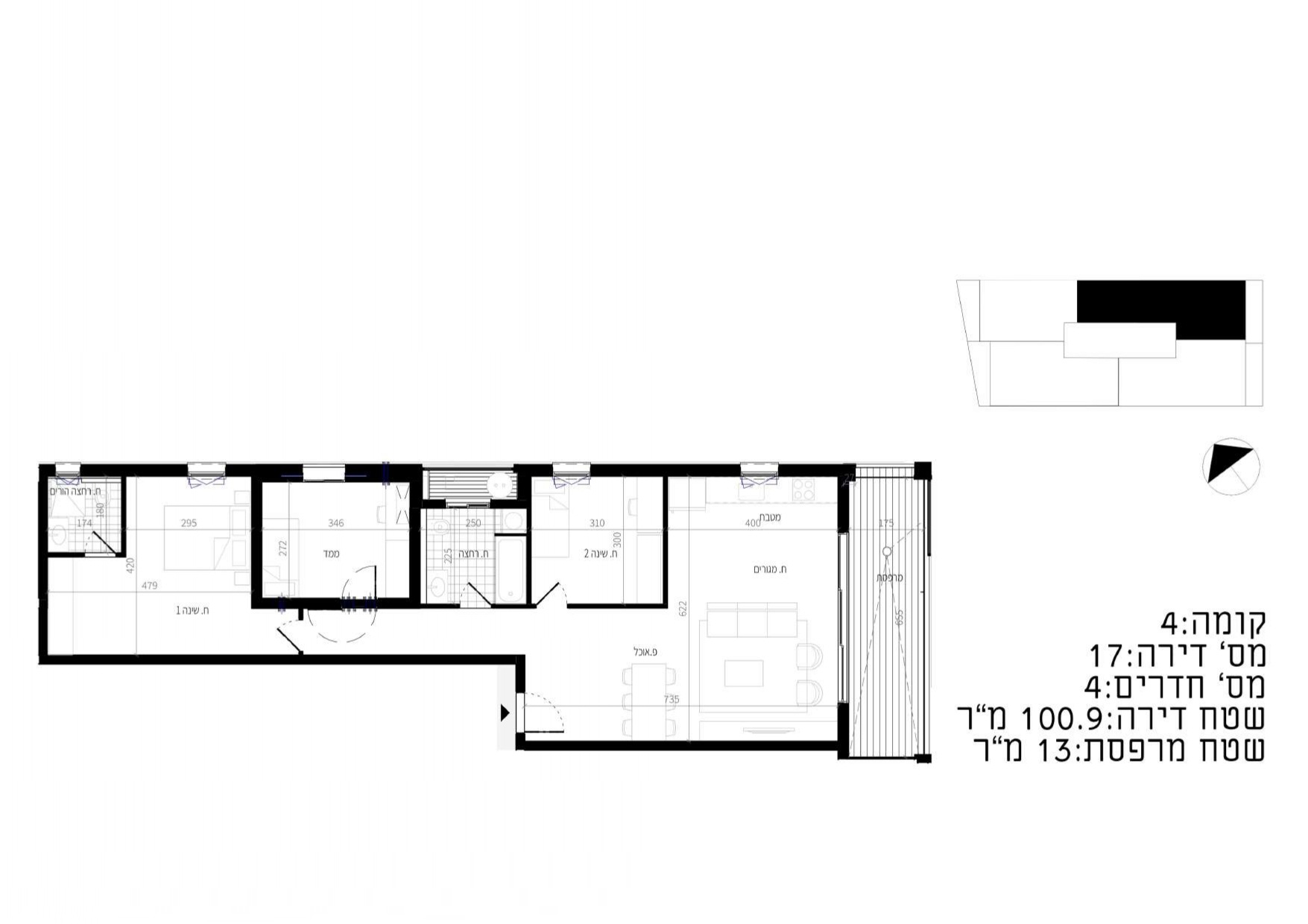
Typologies d’appartements
Le projet proposera plusieurs types de logements adaptés à différents profils d’acquéreurs :
Appartements de 2, 3 et 4 pièces
Espaces lumineux, bien distribués et optimisés
Certains appartements bénéficieront de balcons ou d’espaces extérieurs
Finitions modernes, isolation renforcée et grandes ouvertures
Chaque appartement est pensé pour le confort et la modernité, avec une attention particulière portée à la qualité de vie des futurs occupants.
Localisation & cadre de vie
Le projet est situé au sein d’un quartier apprécié de Bat Yam, à proximité :
Des transports publics
Des écoles et services
De la vie commerciale
Et du littoral, accessible en quelques minutes
La localisation permet de combiner le dynamisme urbain avec la sérénité d’une ville côtière.
Équipements & prestations
Ascenseur dernière génération
Parking privé pour les résidents
Structure renforcée et modernisée
Amélioration des équipements techniques et de l’isolation
Pour qui ?
Ce projet convient parfaitement :
Aux familles recherchant un logement rénové dans une zone agréable
Aux jeunes couples et professionnels souhaitant un accès rapide vers Tel-Aviv et le centre
Aux investisseurs cherchant un bien dans une ville en plein développement et à fort potentiel de valorisation
| Livraison estimée | 2ème trimestre 2029 |
| Ouvertures | Aluminium/Double vitrage |
| Piscine | Non |
| Équipements domotiques | Fibre optique, Interphone, Local à vélo, Portail motorisé, Porte blindée, Visiophone, Volets électriques |
| Climatisation | Réversible |
| Espaces extérieurs | Balcon / Terrasse / Jardin privatif |
- ✓ Quartier Résidentiel
- ✓ Construction Neuve
- ✓ Immeuble Boutique
- ✓ Quartier prisé de Bat Yam
Localisation et environnement
Ce programme immobilier bénéficie d’un emplacement privilégié dans un quartier recherché de Tel Aviv. Profitez de la proximité des commerces, écoles, espaces verts et transports en commun pour un quotidien facilité.
- École primaire (300m)
- Collège (500m)
- Lycée (800m)
- Supermarché (200m)
- Centre commercial (1km)
- Restaurants (400m)
- Arrêt de bus (150m)
- Hôpital (1.5km)
- Pharmacie (300m)
Contactez-nous pour plus d'informations
Remplissez le formulaire ci-dessous pour obtenir plus d’informations sur ce programme immobilier ou pour organiser une visite.